Туалет для дачи. Как построить дачный туалет своими руками
Ни одно местопребывание людей не может обойтись без туалета, и дача не является исключением. Построить дачный туалет своими руками не составит большого труда. Туалет для дачи может быть организован различными способами начиная с традиционного деревенского и заканчивая современным септиком. В этой статье будет рассмотрено как организовать место сбора и утилизации отходов жизнедеятельности и сделать удобный и красивый туалет.
Содержание
Виды туалетов для дачи Постройка уличного туалета своими руками Нормы расположения туалета для дачи Как сделать яму для туалета Как сделать фундамент для туалетной кабинки Сиденье для туалета Чертежи туалетной кабинки Выгребной туалет на даче Схемы и чертежи устройства самодельного септика Автономная система канализацииВиды туалетов для дачи
Дачный туалет по способу устройства можно разделить на три вида: уличный, торфяной, септик или выгребной.
Уличный или летний туалет для дачи представляет собой отдельное строение с ямой под ним для сбора отходов — это самый простой вид, он прекрасно будет удовлетворять все нужды владельцев.
Главное его достоинство в том, что чистка может не выполняться более 10 лет, благодаря медленному накоплению отходов. Этому способствует его устройство, яма негерметична и имеет вентиляцию. Часть жидкой фракции испаряется, а часть впитывается в грунт. Таким образом накопление нечистот происходит очень медленно.
Рис.4. Летний или уличный туалет. Этот вид построить своими руками проще всего. При сезонном использовании данный вид может прослужить более 10-ти лет без обслуживания.
При всех достоинствах уличного туалета его нельзя строить при высоком уровне грунтовых вод, более 2,5 м. В противном случае вода в яме будет постоянно, а не только весной, и нечистоты могут попасть в грунтовую воду. Это особенно опасно если водоснабжение дачи осуществляется с помощью колодца. Также на установку дачного туалета накладываются определенные нормы по расположению на участке.
Торфяной или финский туалет для дачи — это сооружение без ямы, все нечистоты накапливаются в специальном баке. Дачный туалет финской конструкции устраивается в виде отдельного строения. Он имеет простой принцип действия. После каждого использования отходы жизнедеятельности пересыпаются торфом, или смесью торфа с золой, опилками, измельченной корой. Смесь способствует разложению нечистот. Как только емкость заполнится ее необходимо опорожнить в компостную кучу для дальнейшей переработки. Переработанные отходы — это органическое удобрение, которое может применяться для подкормки растений.
Рис.6. Торфяной или финский туалет не использует выгребную яму. В качестве накопителя отходов используется отдельная емкость. Перемешанные с торфом отходы могут использоваться как органическое удобрение.
Этот вид не имеет ограничений по месту расположения. Сухой компостный туалет имеет недостатки — это необходимость регулярного удаление содержимого. Поэтому его целесообразно устраивать если дача используется сезонно и постоянно им пользуются не более 1 – 2 человека.
Септик позволяет организовать санузел в дачном доме. Становится возможным это благодаря герметичной выгребной яме, которая может устанавливаться в любом месте участка и при любом уровне грунтовых вод. Септик делает возможным сделать туалет на даче с унитазом как в городской квартире. В отличие от дачного туалета септик может использоваться круглогодично. Поэтому обычно его устраивают в местах постоянного проживания.
Рис.11. Септик — это аналог городской канализации. При наличии септика туалет устраивают в доме. Септик может эксплуатироваться круглогодично.
Недостатком септика является его дороговизна и трудоемкость установки. Септик не просто накапливает отходы, он их перерабатывает. Септик может быть различных конструкций. В зависимости от вида септика процент переработки различен, но не достигает 100%, поэтому периодически необходимо откачивать отложения, при этом сделать это своими руками достаточно сложно. В связи с чем к септику должен быть доступ для подъезда ассенизационной машины.
Постройка уличного туалета своими руками
Большинство дач используется только летом. Поэтому уличный туалет пользуется наибольшей популярностью. Строительство дачного туалета с выгребной ямой под ним не потребует много сил, его достаточно легко сделать своими руками, а при строительстве можно использовать подручные материалы.
Нормы расположения туалета для дачи
Первый этап постройки — это выбор места его установки. Выбирая место необходимо учитывать санитарные нормы.
Дачный туалет должен быть расположен на расстоянии не менее 8 м от жилых построек, не менее 12 м от погреба и не менее 25 м от источника чистой воды (колодца или скважины). Поэтому обычно его располагают в дальнем углу сада.
Рис.16. Нормы расположения. Туалет необходимо располагать в дали от других построек и источников воды.
Рано или поздно выгребная яма заполнится и туалет нельзя будет эксплуатировать. Яму можно почистить или перенести туалет на другое место. Как правило выбирают второй вариант, делают новую яму рядом со старой и переносят кабинку. В старую выгребную яму добавляют составы с бактериями, которые за пару лет превратят нечистоты в компост. Компост можно извлечь для удобрения, а яму использовать повторно.
Как сделать яму для туалета
Туалет для дачи начинают возводить с устройства выгребной ямы. Стандартная яма имеет глубину 1 - 1,5 м и ширину 1 м. Если грунтовые воды находятся достаточно далеко, то глубина ямы для туалета может быть больше.
Для того чтобы яма не осыпалась необходимо укрепить стенки. Укрепить их можно кирпичом, бутовым камнем, старыми автомобильными покрышками, бетонными кольцами или установить бак. Более долговечный вариант — это бетонные кольца. Однако наиболее простой, быстрый и популярный это бочка. В этой конструкции используют металлическую или пластиковую емкость объемом 200 л.
Рис.19. Выгребная яма из бочки. Для уличного туалета сезонного использования достаточный объем выгребной ямы 200 – 300 л. Выгребную яму удобно изготавливать из бочки. В бочке делают отверстия для дренажа, куда будет постепенно уходить жидкая фракция нечистот. Дно и периметр ямы засыпают щебнем или битым кирпичом.
На дно выгребной ямы насыпают щебень слоем 10 – 15 см. В бочке проделывают отверстия, через которые в грунт будет уходить жидкая фракция нечистот. Устанавливают бочку в яму и по периметру засыпают щебнем. Щебень будет выполнять роль дренажа и препятствовать заиливанию ямы. Вместо щебня можно использовать битый кирпич, камень и пр. Таким образом срок службы дачного туалета можно значительно увеличить.
Как сделать фундамент для туалетной кабинки
Вторым этапом строительства туалета для дачи является возведение кабины. Традиционно кабина изготавливается по каркасной технологии. Сначала собирают каркас, затем обшивают вагонкой, профлистом или сайдингом. Каркасный туалет может быть собран из деревянного бруса или сварен из металлического профиля.
Кабинка достаточно легкая конструкция, поэтому особый фундамент не требуется. Чтобы туалетная кабинка не стояла непосредственно на земле ее ставят на бетонные блоки. В свою очередь бетонные блоки кладут на песчаную подушку толщиной 10 – 20 см. Такой подход обеспечивает надежное основание и естественное проветривание, что способствует отсутствию запаха.
Рис.26. Фундамент для туалетной кабинки. Фундамент можно изготовить из бетонных блоков, установленных на песчаную подушку. Блоки располагают по углам кубинки. Такая конструкция основания обеспечивает вентиляцию выгребной ямы и отсутствие запаха в дачном туалете.
Проще всего изготовить кабинку из дерева, т.к. при работе с деревом не требуется специального инструмента, например, сварки. Деревянная кабинка не будет нагреваться на солнце в отличие от туалета из профлиста, и пользоваться им будет комфортно.
Рис.29. При постройке уличного туалета сначала изготавливают каркас из брусьев, после чего домик обшивают с наружи. Все необходимые размеры для строительства указаны на чертеже. Дверь может быть изготовлена из досок.
Деревянную кабинку своими руками можно изготовить из бруса сечением от 50х50 мм до 100х100мм. Сначала собирают основание каркаса, затем устанавливают вертикальные стойки, после чего крепят стропила и делают обрешётку.
Все элементы каркаса кабины соединяются саморезами и строительными металлическими уголками. Снаружи она зашивается доской, рейкой или блок хаусом, который делает похожим кабинку на туалет из бревна. Для кровли можно использовать любой кровельный материал. Дверь для туалетного домика можно изготовить из досок или использовать готовую.
Сиденье для туалета
Сиденье для туалета может быть изготовлено различными способами. Наиболее популярны два варианта: помост и специальное пластиковое ведро. Изготавливая помост важно учитывать, что его высота должна быть 45 см, а ширина 60 см. Такие размеры гарантируют удобство пользования дачным туалетом.
Рис.35. Сиденье для туалета можно изготовить своими руками или использовать готовое. Готовое сиденье более гигиенично и его проще мыть.
Важным моментом, который следует учитывать при строительстве кабинки — это наличие окна. Окно выполняет две функции освещения и вентиляции. Окно не следует стеклить, так в домике не будет жарко и не будет запаха.
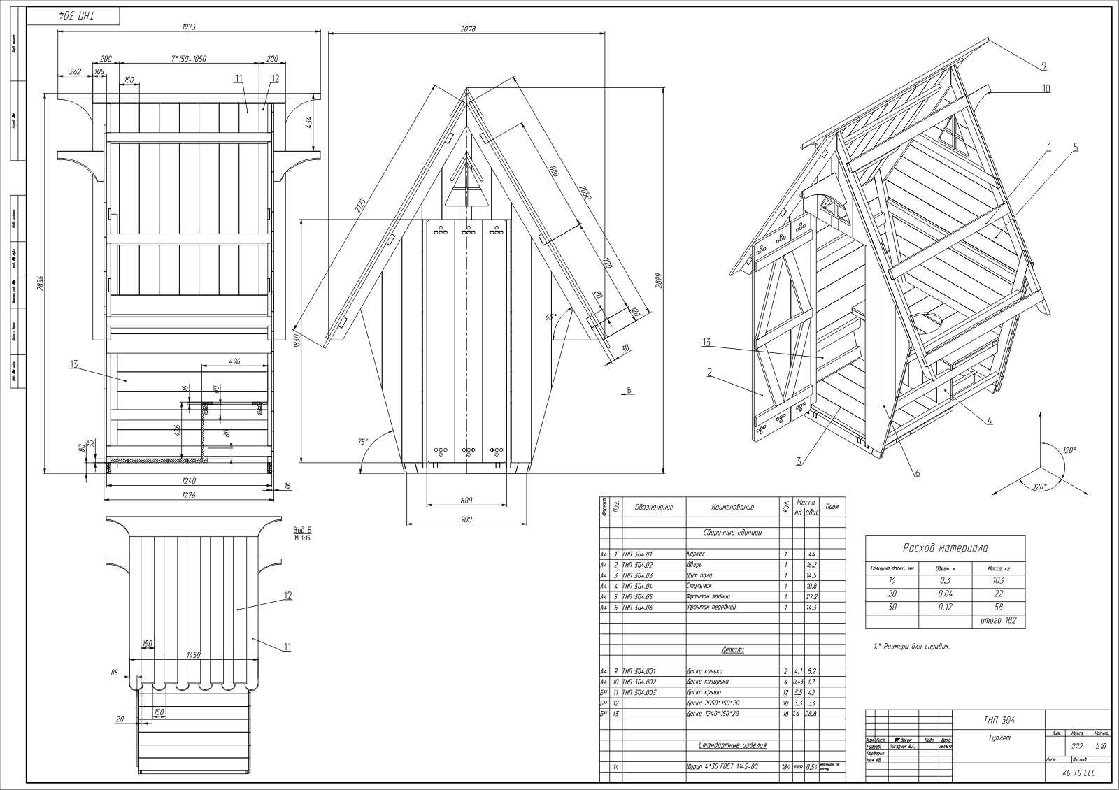
Чертежи туалетной кабинки
Туалетная кабинка может иметь и другую конструкцию, но принцип постройки у всех идентичен. Вот несколько примеров.
Рис.49. Как замаскировать туалет на даче фото. Обшить его блок хаусом и покрасить его в цвет коры дерева.
Выгребной туалет на даче
Септик, для дачи сезонного использования, делают достаточно редко по причине высокой трудоемкости его устройства. Конечно можно приобрести готовый септик, но тогда придется заплатить за него не малую сумму денег. Если же дача посещается круглый год, то установка септика полностью оправдывает потраченные на него силы и деньги.
Септик представляет собой герметичную камеру или несколько камер в которые попадают отходы жизнедеятельности, где они накапливаются и частично перерабатываются. Основным критерием строительства септика является его объем. Для семьи из трех человек минимальный объем септика должен быть 1,5 м.куб.
Самый простой септик состоит из одной камеры и его достаточно просто сделать своими руками, т.к. по сути это герметичная выгребная яма, которая исключает утечку нечистот и подтопление грунтовыми водами.
Порядок устройства выгребной ямы для дачного туалета следующий. Роют котлован 1,5 – 2 м глубиной. На дно котлована насыпается песчаная подушка толщиной 20 см. Далее заливают бетонную плиту толщиной 10 см это будет дно выгребной ямы. После чего из кирпича, камня или бетона возводят стенки выгребной ямы. Снаружи постройки делают гидроизоляцию для защиты от грунтовых вод. К выгребной яме подводят канализационную трубу от туалета. Канализационную трубу кладут с уклоном 2-3 см на 1 м длины. Сверху ямы устраивают крышу. Крышу можно сделать из дерева или из бетона. Для круглогодичного применения крыша выгребной ямы должна быть утепленной. При создании крыши обязательно предусматривают люк для откачки нечистот.
Рис.56. Септик своими руками может быть изготовлен из камня, бетона или кирпича. Более простой вариант устройства септика — это использование готовых бетонных конструкций, например, бетонных колец. Изготавливая септик своими руками важно хорошо его герметизировать, чтобы не было утечки нечистот и подтопления грунтовой водой.
Более простой и быстрый вариант создание выгребной ямы это использовании готовых бетонных конструкций, например, колец. В этом случае необходимо вырыть котлован, смонтировать в нем кольца и подвести канализационную трубу от дачного туалета.
Дополнительно септик должен быть утеплен и оборудован вентиляцией. Наиболее простой вариант вентиляции — это установка фанового стояка в доме и вывод трубы на уровень крыши.
Эксплуатируется септик такого вида достаточно просто. Постепенно он наполняется нечистотами, и при заполнении 2/3 объема септика опорожняется ассенизационной машиной. Делать это придется регулярно, поэтому септик необходимо располагать в месте доступном для подъезда ассенизатора.
Схемы и чертежи устройства самодельного септика
Автономная система канализации
Альтернативой самодельному септику является септик «Танк». Он представляет собой пластиковую бочку, разделенную на секции. Сначала заполняется первая секция, при этом твердые отходы спускаются на дно, а на поверхности остается только жидкая фракция. По мере наполнения жидкая фракция переливается в соседнюю секцию, где происходят аналогичные процессы. В септик добавляют состав, содержащий анаэробные бактерии, которые разлагают нечистоты. Очищенная таким образом вода сливается в дренаж, а осадок откачивается ассенизатором.
Рис.63. Септик танк позволяет провести переработку нечистот, что позволяет реже вызывать ассенизатор в отличие от традиционной выгребной ямы.
Другим вариантом септика с высоким процентом переработки отходов является септик «Автономная канализация». Принцип его действия аналогичен традиционному септику за тем лишь исключением, что автономная канализация снабжена воздушным компрессором, который обогащает нечистоты кислородом, а процесс разложения идет под воздействием аэробных бактерий. Автономная канализация зависима от электричества, но позволяет добиться большой степени переработки отходов жизнедеятельности.
Рис.64. Автономная канализация позволяет провести почти полную переработку нечистот. Таким образом чистить такую канализацию придется один раз в несколько лет. Однако автономная канализация требует постоянного пользования, т.к. при недостатке нечистот гибнут перерабатывающие их бактерии. Поэтому если вы не планируете пользоваться канализацией дольше трех месяцев, то ее целесообразно законсервировать.
Установка последних двух видов септика заключена в подготовке котлована, установке септика в него и соединение с системой канализации дома.
Мы рассмотрели все способы устройства и постройки туалета для дачи. Если вы планируете жить или посещать дачу круглый год и хотите иметь комфорт как в городской квартире, то следует сразу устанавливать септик. Если вы посещаете дачу только летом, то проще и быстрее построить летний туалет с выгребной ямой под ним. Если вы на даче бываете не часто, то наиболее простой вариант устройства туалета — это финский торфяной туалет. Какой бы вариант туалета вы не выбрали любой из них будет прекрасно обеспечивать ваши нужды, а дача без туалета не останется.






















































