Хозблок для дачи своими руками: виды и пример постройки
Одним из первых строений, возводимых на дачном участке, является хозблок (хозяйственный блок). Хозблок для дачи часто называют бытовкой или подсобкой, т.к. в условиях дачи он может использоваться и для хранения инструмента, и в качестве летней кухни, и как временный домик для ночевки. Хозблок не теряет своей ценности и после возведения капитального дома, он легко может быть переоборудован, например, из временного домика в сарай для хранения инвентаря. Существует много способов возведения хозяйственного блока и вариантов его обустройства. Для того чтобы хозяйственный блок полностью удовлетворял вашим требованиям предлагаем рассмотреть наиболее популярные варианты решений постройки и обустройства хозблока для дачи.
Содержание
Готовые конструкции хозблока для дачи Пластиковый хозблок для дачи Хозяйственный блок для дачи из металла Капитальный хозяйственный блок для дачи Чертежи и схемы капитального хозблока Постройка хозблока из дерева по каркасной технологии Пример постройки хозблока для дачиГотовые конструкции хозблока для дачи
Наиболее простое решение сделать хозблок для дачи это приобрести быстровозводимый готовый хозяйственный блок, который достаточно доставить на дачный участок и собрать. Существует два варианта быстровозводимых хозблоков: пластиковые и металлические.
Пластиковый хозблок для дачи
Рис.1. Пластиковый хозблок – быстровозводимая постройка, которую можно доставить на дачу на легковом автомобиле и собрать своими руками за пару часов.
Пластиковый хозяйственный блок состоит из готовых пластиковых секций. Сборка пластикового хозблока займет не более 2 – 3-х часов. При сборке не потребуется специального инструмента и крепежа, все элементы идут в комплекте. Для установки пластикового хозяйственного блока на даче не нужен фундамент. Установить хозблок этого вида можно в любом месте дачного участка, а в дальнейшем в случае необходимости перенести на новое место, затратив на это минимум сил и времени.
Пластиковые хозблоки имеют пол, вентиляцию и окна, поэтому в нем будет чисто, сухо и светло, без проведения электричества. Материал хозблока не гниет, не ржавеет и не требует ухода. Срок службы более 10-ти лет.
Хозяйственный блок для дачи из металла
Рис.2. Металлический хозблок для дачи может быть установлен как первое строение на участке, так и как стационарное для хранения инструмента и садовой техники. Металлический хозблок относится к быстровозводимым строениям.
Металлический хозяйственный блок состоит из металлического каркаса и обшивается профлистом. Продается готовым комплектом. Металлический хозблок для дачи можно собрать своими руками без применения сварки. В отличие от пластикового хозблока сборка занимает немного больше времени. Металлический хозблок обычно не имеет пола, поэтому предварительно необходимо подготовить место для установки, например, уложить тротуарную плитку или залить бетонную площадку.
Металлический хозблок изготавливается из оцинкованной стали с лакокрасочным покрытием. Это гарантирует хорошую защиту от ржавчины и долгий срок службы. Металлический хозблок не требует ухода и периодической окраски.
Капитальный хозяйственный блок для дачи
Главное достоинство готовых хозяйственных блоков — это быстрота возведения, но если не предвидится скорое строительство домика, то на хозблок для дачи возлагаются значительно большие требования, чем склад инвентаря. Хозблок на даче должен предоставить его хозяину возможность отдыха и справления естественных нужд, особенно если это единственная постройка на дачном участке. Поэтому целесообразно возвести капитальный хозблок для дачи.
Капитальный хозблок на даче можно изготовить из кирпича или дерева. Конечно каменный хозблок более долговечен и неприхотлив в обслуживании, но строительство каменной капитальной постройки занимает много сил и времени. Поэтому наиболее простым и быстрым вариантом возведения хозблока для дачи является деревянный хозблок построенный по каркасной технологии.
Рис.3. Быстро и с наименьшими затратами хозяйственный блок для дачи можно изготовить по каркасной технологии. Несмотря на простоту постройки хозблок для дачи из дерева может прослужить не один десяток лет.
Каркасная технология широко применяется в строительстве дачных домов и хозяйственных построек. Она проста и требует минимума материалов при строительстве. Поэтому деревянный хозблок может обойтись даже дешевле, чем готовый, при этом удовлетворять всем потребностям владельца.
Рис.4. Если хозблок это единственная постройка на даче, то в ней необходимо предусмотреть душ, туалет и комнату отдыха. После постройки дома комнату отдыха можно использовать как склад инвентаря.
Большой популярностью пользуется хозблок для дачи совмещающий в себе туалет, душ и небольшую комнату. До строительства дачного дома эту комнату можно использовать как склад, кухню, укрытие от солнца или место для ночевки. Если хозблок утеплить и обеспечить источником тепла (печка или электрический обогреватель), то ночевать в нем можно с ранней весны и до поздней осени. Тем самым, не изматывая себя однодневными поездками на дачу для ухода за посадками, строительством дома и пр. После того как дачный домик будет построен эту комнату можно переоборудовать под баню, или склад садовой техники и инструмента.
Рис.5. Оптимальные размеры внутренних частей хозблока приведены на чертеже. С правой стороны расположены два небольших помещения для душа и туалета. Для организации душа достаточно на крыше хозблока установить бак с водой. В течении дня солнце будет нагревать воду, и вечером можно принять теплый душ.
Рис.6. Небольшие габаритные размеры хозблока для дачи позволяют его установить в любом месте участка. Такой хозблок прекрасно обеспечит все потребности садовода.
Чертежи и схемы капитального хозблока
Постройка хозблока из дерева по каркасной технологии
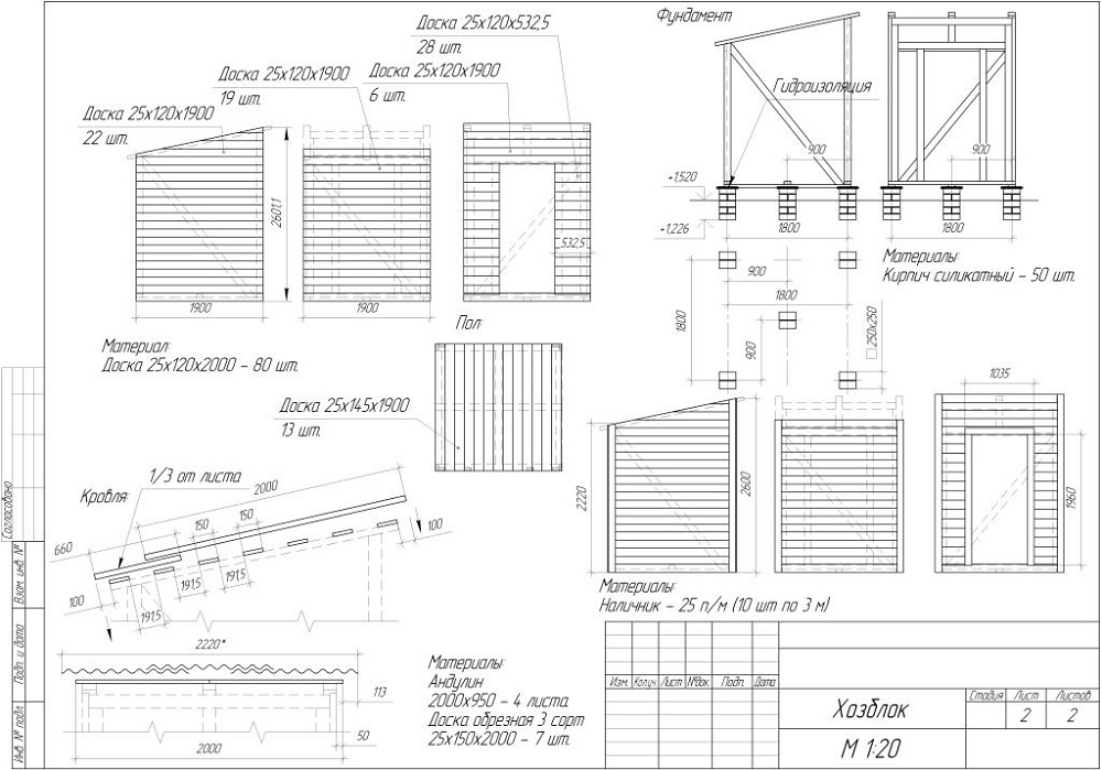
Для постройки хозблока для дачи из дерева не требуется серьезных затрат на возведение фундамента. Фундамент для каркасного хозяйственного блока применяется свайный или столбчатый. Свайный фундамент состоит из металлических или асбетоцементных труб, заглубленных в землю на глубину 1-1,5 м. Трубы устанавливаются по периметру постройки с шагом 2 - 3м. Столбчатый фундамент изготавливается из строительных блоков или кирпича. Для этого в грунте делают углубление глубиной 20 см. Углубления засыпают песком, на песок укладывают блоки и скрепляют раствором.
Рис.11. Для деревянного хозблока для дачи не требуется специального фундамента. В качестве фундамента могут применяться строительные блоки, установленные на песчаную подушку и скрепленные между собой раствором.
Следующий этап — это сборка пола (основания) хозблока. Пол изготавливают из бруса сечением 100х100 мм или 150х150 мм. Брус будет основой для стен и всего пола. На фундамент укладывают рубероид для защиты древесины от влаги, на него укладываются брусья и соединяются в пол дерева. К продольным брусьям с шагом 60 - 100 см крепят лаги пола. Для лаг применяют доску 40х100 или 50 х100 мм.
Рис.12. Основание деревянного хозблока изготавливают из бруса сечением 100х100 или 150х150 мм. Брусья будут служить основой для стен. Между длинными брусьями устанавливают лаги. Они будут основой для настила пола.
На этом этапе пол может быть утеплен, если планируется делать теплый хозблок, и зашит половой доской или фанерой.
Дале на готовое основание хозблока устанавливаются вертикальные опоры из бруса 80х80 или 100х100 мм и укладываются стропила. Для стропил используют доску 40х120 мм. На стропила крепят обрешетку из доски 25х120 мм. Все элементы хозблока скрепляют с помощью саморезов и металлических строительных уголков.
Рис.13. На собранное основание устанавливают вертикальные опоры из бруса 100х100 мм с шагом 06 – 1 м. Для придания конструкции устойчивости вертикальные брусья скрепляют диагональными перемычками. Все элементы конструкции соединяются саморезами и строительными уголками. Основа крыши стропила из доски 40х100 мм. Для обрешетки используется доска 25х100мм. Покрытие крыши может быть любым.
Заключительный этап — это зашивка и утепление собранного каркаса. Изнутри хозблок обычно зашивают фанерой или ОСП толщиной 10 -16 мм. Снаружи хозяйственный блок может быть облицован вагонкой, доской или сайдингом.
Пример постройки хозблока для дачи



























